Нова Жилищна кооперация  “Вила Вилекула”

 в Google maps - ул. Стефан Дуньов № 47

в Google maps - ул. Стефан Дуньов № 47

Жилищна кооперация е разположена в тихия и зелен квартал “Модерно предградие”. Новоизградената улица “Стефан Дуньов” е широка и просторна, атмосферата тук е ваканционна, затова нарекохме новата ни сграда “Вила Вилекула”, както е наричала дома си известната в детството ни Пипи Дългото чорапче.

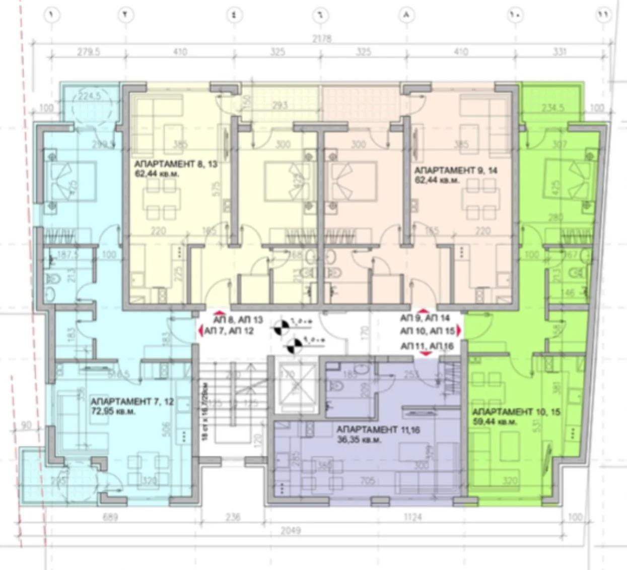
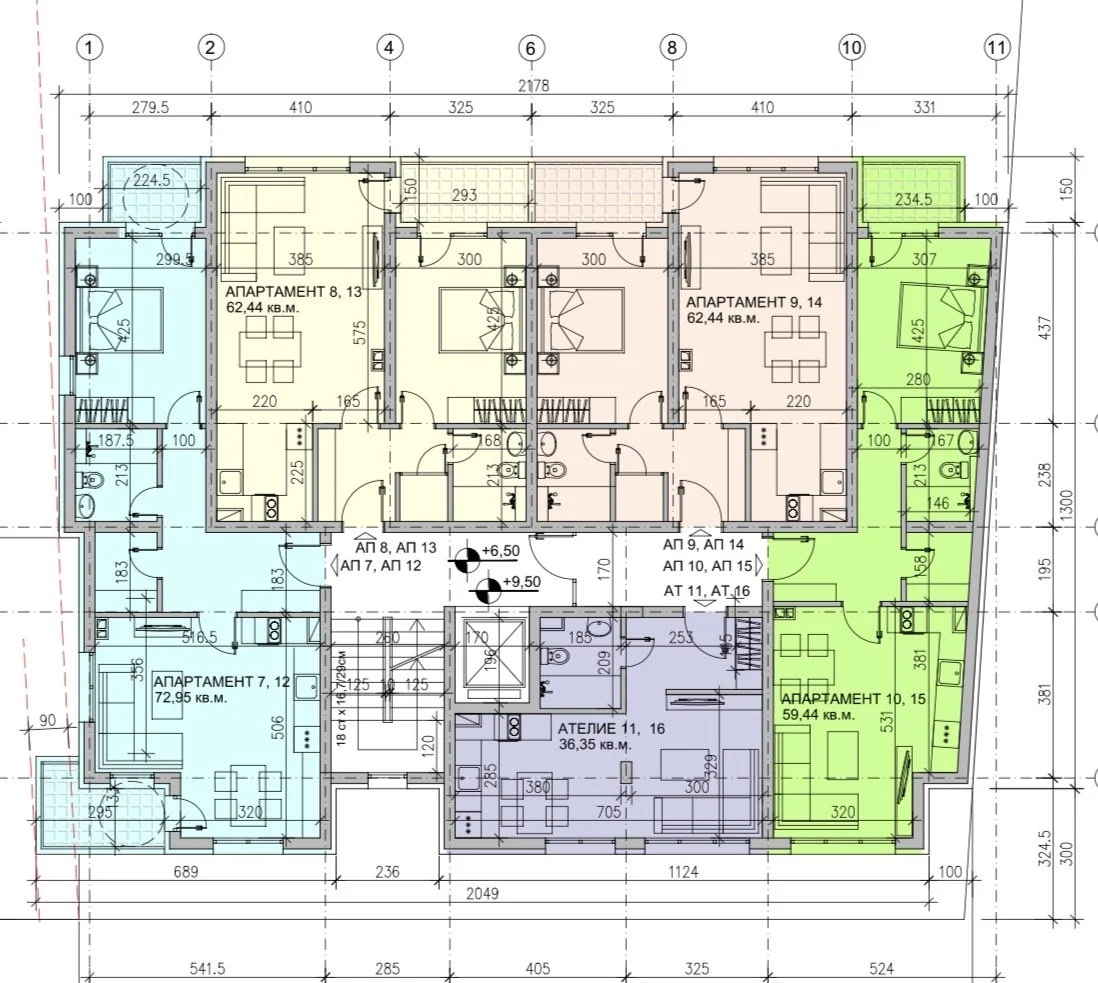
Фасадите й  са в три посоки - северозапад, североизток, югоизток. Надземното РЗП е 1950 кв.м, като сградата разполага с двустайни апартаменти, гаражи и надземни паркоместа.

Районът е с перфектна инфраструктура, развити транспортни връзки и бърз достъп по бул. Сливница и ул. “Адам Мицкевич”. Наблизо се намират много от големите супермаркети и магазини, има детски градини, училища. Най-близката станция на метрото е метростанция “Сливница”, започнало е изграждане на метростанция „Модерно предградие“.

„Вила Вилекула“ е със свежа визия, комфортен асансьор и добре осветени стълбищни площадки. Строи се от доказан инвеститор с осем сгради в София!

Апартаментите се издават в степен на завършеност по БДС (шпакловани стени и подове със замазка).

Свободни апартаменти, гаражи и паркоместа

етаж 1 (партер)

ап.1                - продаден

Гараж 3          26 500 евро

Гараж 4          25 500 евро

Гараж 6          25 500 евро

 

етаж 2

ап. 2    - продаден

ап. 3      продаден

ап. 4    - продаден

ап. 6  - продаден

 

етаж 3

ап. 9   продаден

ап.10   - продаден

ап. 11    - продаден

 

етаж 4

ап. 12 - продаден

ап. 13   - продаден

ап. 14    - продаден

ап. 15    - продаден

 

етаж 5

ап. 17   - двустаен запад/север/юг 81,55 кв.м с общ.ч., чиста площ  69,51 кв.м  - 129 700 евро

ап. 18    - двустаен изток,  73,91 кв.м с общ.ч., чиста площ  62,81 кв.м   - 125 700 евро

ап. 19   - продаден

ет. 6

ап. 21 - продаден

ап. 22 - продаден

ап. 23 - продаден

 

Паркоместа във вътрешния двор:

 

Паркомясто 1    15 500 евро

Паркомясто 5    14500 евро

Паркомясто 7    14 500 евро